【No.6703】若葉台南6丁目/6LDKS/駐車場4台可/二世帯住宅仕様

1,980万円

鳥取県鳥取市若葉台南6丁目23-5

因美線「東郡家」駅徒歩28分

価格
1,980万円
間取り/建物面積
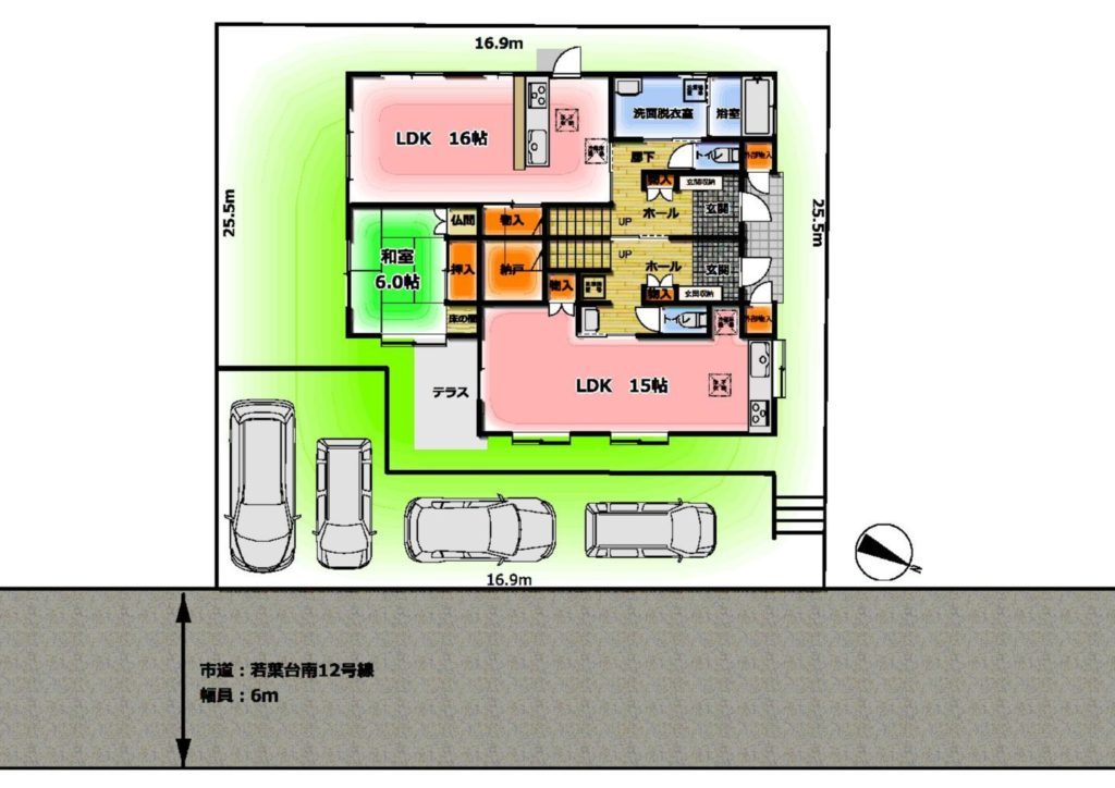
6LDK+S(納戸)/192.93㎡
所在地
鳥取県鳥取市若葉台南6丁目23-5
築年
2002年5月(築24年)
駐車
有(4台)
交通

因美線東郡家」駅 徒歩28分

【No.6703】若葉台南6丁目/6LDKS/駐車場4台可/二世帯住宅仕様の基本情報

物件名
【No.6703】若葉台南6丁目/6LDKS/駐車場4台可/二世帯住宅仕様
価格
1,980万円
建物面積
192.93㎡
土地面積
80.16坪(265.00㎡)
築年月
2002年5月(築24年)
総戸数
-
所在地
鳥取県鳥取市若葉台南6丁目23-5
交通

因美線東郡家」駅 徒歩28分

【No.6703】若葉台南6丁目/6LDKS/駐車場4台可/二世帯住宅仕様の詳細情報

設備条件
設備(その他)
    -
駐車場/月額
有(4台)/0円
土地権利
所有権
国土法届出
不要
用途地域
第一種低層住居専用
取引態様
仲介
引渡し
相談
備考
ぜひ一度見ていただきたい、「6703若葉台南6丁目中古住宅」です。不同沈下にも高い耐性を持つ、ベタ基礎の物件です。中古戸建てながら、室内はとてもきれいです。こちらの土地は前面道路6m以上です。当社では鳥取市に特化した不動産情報をご紹介しております。地域情報などにも詳しいので、ぜひお気軽にお問い合わせください。

【No.6703】若葉台南6丁目/6LDKS/駐車場4台可/二世帯住宅仕様のコメント(おすすめポイント)

徒歩48分の距離に鳥取市立桜ケ丘中学校があるのも魅力。室内環境まで左右する基礎は、強靭なベタ基礎となっております。前面道路6m以上の物件です。こちらの物件は中古戸建物件です。鳥取市にあるこちらの一戸建てに関して、何かご不明な点などがございましたら、ぜひお問い合わせ下さい。内覧予約なども承っております。

【No.6703】若葉台南6丁目/6LDKS/駐車場4台可/二世帯住宅仕様で募集中の物件

  1. 58.36坪 (192.93㎡)

    1,980万円(33.93万円/坪)

周辺施設

  • 鳥取警察署若葉台駐在所の画像

    警察

    鳥取警察署若葉台駐在所

    125m(2分)

  • 鳥取市立若葉台小学校の画像

    小学校

    鳥取市立若葉台小学校

    596m(8分)

  • 鳥取県畜産農業協同組合 フレッシュパーク若葉台の画像

    スーパー

    鳥取県畜産農業協同組合 フレッシュパーク若葉台

    611m(8分)

  • コイン精米所の画像

    その他

    コイン精米所

    993m(13分)

  • 因美線津ノ井駅の画像

    因美線津ノ井駅

    2766m(35分)

  • ファミリーマート 鳥取鉄工センター店の画像

    コンビニエンスストア

    ファミリーマート 鳥取鉄工センター店

    2892m(37分)

  • 岡本医院の画像

    総合病院

    岡本医院

    2962m(38分)

  • 鳥取市立桜ケ丘中学校の画像

    中学校

    鳥取市立桜ケ丘中学校

    3797m(48分)

  • ウェルネス桜谷店の画像

    ドラッグストア

    ウェルネス桜谷店

    3972m(50分)

  • しまむらの画像

    ショッピングセンター

    しまむら

    4164m(53分)

  • 山陰合同銀行桜谷出張所の画像

    銀行

    山陰合同銀行桜谷出張所

    4187m(53分)

  • ワークマン雲山店の画像

    ディスカウントショップ

    ワークマン雲山店

    4688m(59分)

  • 鳥取市立病院の画像

    総合病院

    鳥取市立病院

    5043m(64分)

  • ホームプラザナフコ東鳥取店の画像

    ホームセンター

    ホームプラザナフコ東鳥取店

    5455m(69分)

  • 鳥取県庁 東部庁舎の画像

    都道府県機関

    鳥取県庁 東部庁舎

    5728m(72分)

  • とりぎん文化会館の画像

    都道府県機関

    とりぎん文化会館

    7661m(96分)

  • 鳥取県庁の画像

    都道府県機関

    鳥取県庁

    7883m(99分)

近隣の物件

  1. 鳥取市徳尾

    3LDK (91.09㎡)

    3,390万円

  2. 鳥取市湖山町南1丁目

    3LDK (131.00㎡)

    2,580万円

  3. 鳥取市東今在家

    3LDK (100.23㎡)

    2,990万円

  4. 鳥取市湯所町1丁目

    6LDK (208.17㎡)

    1,830万円

よく見られている物件

  1. 鳥取市鹿野町今市

    3LDK (99.18㎡)

    1,380万円

  2. 鳥取市吉成

    2LDK (65.60㎡)

    1,630万円

  3. 鳥取市浜坂3丁目

    4LDK (94.39㎡)

    2,480万円

  4. 鳥取市徳尾

    3LDK (91.09㎡)

    3,390万円

【No.6703】若葉台南6丁目/6LDKS/駐車場4台可/二世帯住宅仕様

お気軽にお問い合わせください

LINEからお問い合わせ 無料お問い合わせ

株式会社ライフエステート

0857-50-1567

10:00~18:00

(休:木・祝日・日曜(予約対応))